"Bosgaurus Coffee Roasters: Karya Arsitektur dan Desain dari NU"

Whatsapp Facebook Twitter X Linkedin
"Bosgaurus Coffee Roasters: Karya Arsitektur dan Desain dari NU"

Selesai dibangun pada tahun 2023 di Kota Ho Chi Minh, Vietnam. Gambar oleh Hiroyuki Oki. Bosgaurus Coffee Roasters adalah ahli lokal yang menyajikan kopi spesial dari ladang ke meja. Dengan slogan "menjaga mimpi tetap terjaga", mereka terus... Deskripsi Artikel Pendek: Artikel ini membahas tentang Bosgaurus Coffee Roasters, sebuah ahli kopi lokal di Kota Ho Chi Minh, Vietnam, yang menyelesaikan pembangunannya pada tahun 2023. Mereka dikenal dengan kopi spesialnya yang disajikan langsung dari ladang ke meja dan komitmen mereka untuk "menjaga mimpi tetap terjaga".

Bosgaurus Coffee Roasters adalah ahli lokal yang menyajikan kopi spesial dari petani ke meja. Dengan slogan "menjaga mimpi tetap terjaga", mereka terus bereksperimen untuk meningkatkan kualitas dan kerajinan kopi Vietnam di panggung global. Dengan membuka toko utama mereka di Kota Ho Chi Minh, mereka terus mencari bahasa desain yang minimalis dan elegan. Konteks budaya lokal adalah pendorong terbesar untuk desain, khususnya Saigon Opera House yang dekat yang menginspirasi tidak hanya arsitektur, tetapi juga ide tentang pertunjukan langsung. Fasad bergaya Art Deco yang ada di situs tersebut dipertahankan dan dicat dengan warna netral untuk mencocokkan nada Saigon Opera House.

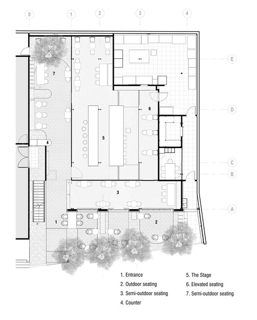
Menggabungkan cerita klien dan konteks lokal, kami mengusulkan desain yang berputar di sekitar konsep "panggung pertunjukan", dengan visi untuk meningkatkan seni pembuatan kopi dan barista sebagai penampil yang menunjukkan seni mereka. Perencanaan spasial strategis membuat kami memiliki bar sebagai panggung. Panggung terdiri pertama dari bar berat dan kedua, elemen tanda tangan dari merek klien kami, "fly bar". Yang terakhir ini menjorok dari satu struktur pendukung yang terbuat dari 2 ton pondasi beton untuk menciptakan efek terbang. Karena kami ingin berbagai jenis interaksi antara penampil dan penonton, beberapa pada tingkat mata dan beberapa dari sudut pandang yang lebih tinggi, kami bermain dengan level yang berbeda untuk mencapai pendekatan inovatif ini.

Bosgaurus Coffee Roasters percaya pada transparansi untuk mewakili proses pembuatan kopi mereka dan semangat tersebut telah diimplementasikan dengan elegan melalui arsitektur. Koneksi visual yang dapat ditembus antara zona tempat duduk dalam ruangan, semi-luar ruangan, dan luar ruangan dicapai menggunakan kaca penuh tanpa bingkai. Perabotan stainless steel khusus dirancang untuk menjadi ringan dan tipis untuk menyeimbangkan beratnya bar.

Keberlanjutan adalah pilar dalam setiap keputusan desain. Bahan yang paling dominan yang digunakan untuk lantai dan finishing bar adalah permukaan lantai ekologis yang ramah lingkungan dan berbasis air oleh Nora Design Italiano. Area semi-luar ruangan dan luar ruangan yang berventilasi alami menawarkan pilihan tempat duduk bagi tamu sambil mengurangi penggunaan AC. Void atap langit-langit dirancang sebagai cerobong asap surya yang memungkinkan udara panas dilepaskan secara efisien sambil memaksimalkan cahaya alami ke interior sehingga meminimalkan kebutuhan pencahayaan buatan.

Desain pencahayaan mengikuti konsep panggung pertunjukan. Sorotan difokuskan pada "fly bar", sementara sebaliknya, lampu dinding yang tersebar digunakan di area tempat duduk sekitarnya untuk memberikan suasana yang lembut dan hangat kepada penonton. Penggunaan pencahayaan 4000K juga mengubah ruangan menjadi tempat peristirahatan yang sejuk bagi pecinta kopi selama siang hari sambil menampilkan suasana bar yang hangat dan mewah di malam hari.

Secara keseluruhan, kafe dan bar ini mendorong rasa komunitas, mengumpulkan orang-orang dari latar belakang yang berbeda yang berbagi cinta mereka pada kopi. Bosgaurus Coffee Roasters lebih dari sekedar kedai kopi; itu bertindak sebagai panggung untuk merayakan kerajinan yang terlibat dalam pembuatan kopi Vietnam dan meningkatkan citranya secara global.

Gallery
Lihat
"Bosgaurus Coffee Roasters: Karya Arsitektur dan Desain dari NU" 1
Lihat
"Bosgaurus Coffee Roasters: Karya Arsitektur dan Desain dari NU" 2
Lihat
"Bosgaurus Coffee Roasters: Karya Arsitektur dan Desain dari NU" 3
Lihat
"Bosgaurus Coffee Roasters: Karya Arsitektur dan Desain dari NU" 4
Lihat
"Bosgaurus Coffee Roasters: Karya Arsitektur dan Desain dari NU" 5
Lihat
"Bosgaurus Coffee Roasters: Karya Arsitektur dan Desain dari NU" 6
Lihat
"Bosgaurus Coffee Roasters: Karya Arsitektur dan Desain dari NU" 7
Lihat
"Bosgaurus Coffee Roasters: Karya Arsitektur dan Desain dari NU" 8
Lihat
"Bosgaurus Coffee Roasters: Karya Arsitektur dan Desain dari NU" 9
Lihat
"Bosgaurus Coffee Roasters: Karya Arsitektur dan Desain dari NU" 10
Lihat
"Bosgaurus Coffee Roasters: Karya Arsitektur dan Desain dari NU" 11
Lihat
"Bosgaurus Coffee Roasters: Karya Arsitektur dan Desain dari NU" 12
Lihat
"Bosgaurus Coffee Roasters: Karya Arsitektur dan Desain dari NU" 13
Lihat
"Bosgaurus Coffee Roasters: Karya Arsitektur dan Desain dari NU" 14
Lihat
"Bosgaurus Coffee Roasters: Karya Arsitektur dan Desain dari NU" 15
Lihat
"Bosgaurus Coffee Roasters: Karya Arsitektur dan Desain dari NU" 16
Lihat
"Bosgaurus Coffee Roasters: Karya Arsitektur dan Desain dari NU" 17
Lihat
"Bosgaurus Coffee Roasters: Karya Arsitektur dan Desain dari NU" 18
Lihat
"Bosgaurus Coffee Roasters: Karya Arsitektur dan Desain dari NU" 19
Lihat
"Bosgaurus Coffee Roasters: Karya Arsitektur dan Desain dari NU" 20
Lihat
"Bosgaurus Coffee Roasters: Karya Arsitektur dan Desain dari NU" 21
Lihat
"Bosgaurus Coffee Roasters: Karya Arsitektur dan Desain dari NU" 22
Lihat
"Bosgaurus Coffee Roasters: Karya Arsitektur dan Desain dari NU" 23
Lihat
"Bosgaurus Coffee Roasters: Karya Arsitektur dan Desain dari NU" 24
Lihat
"Bosgaurus Coffee Roasters: Karya Arsitektur dan Desain dari NU" 25
Lihat
"Bosgaurus Coffee Roasters: Karya Arsitektur dan Desain dari NU" 26
Lihat
"Bosgaurus Coffee Roasters: Karya Arsitektur dan Desain dari NU" 27

Jasa Kontraktor Interior Custom

Hoomy Ai juga menyediakan jasa desain dan pembangunan interior dengan layanan yang disesuaikan dengan kebutuhan dan selera klien.

Konsultasi Sekarang →